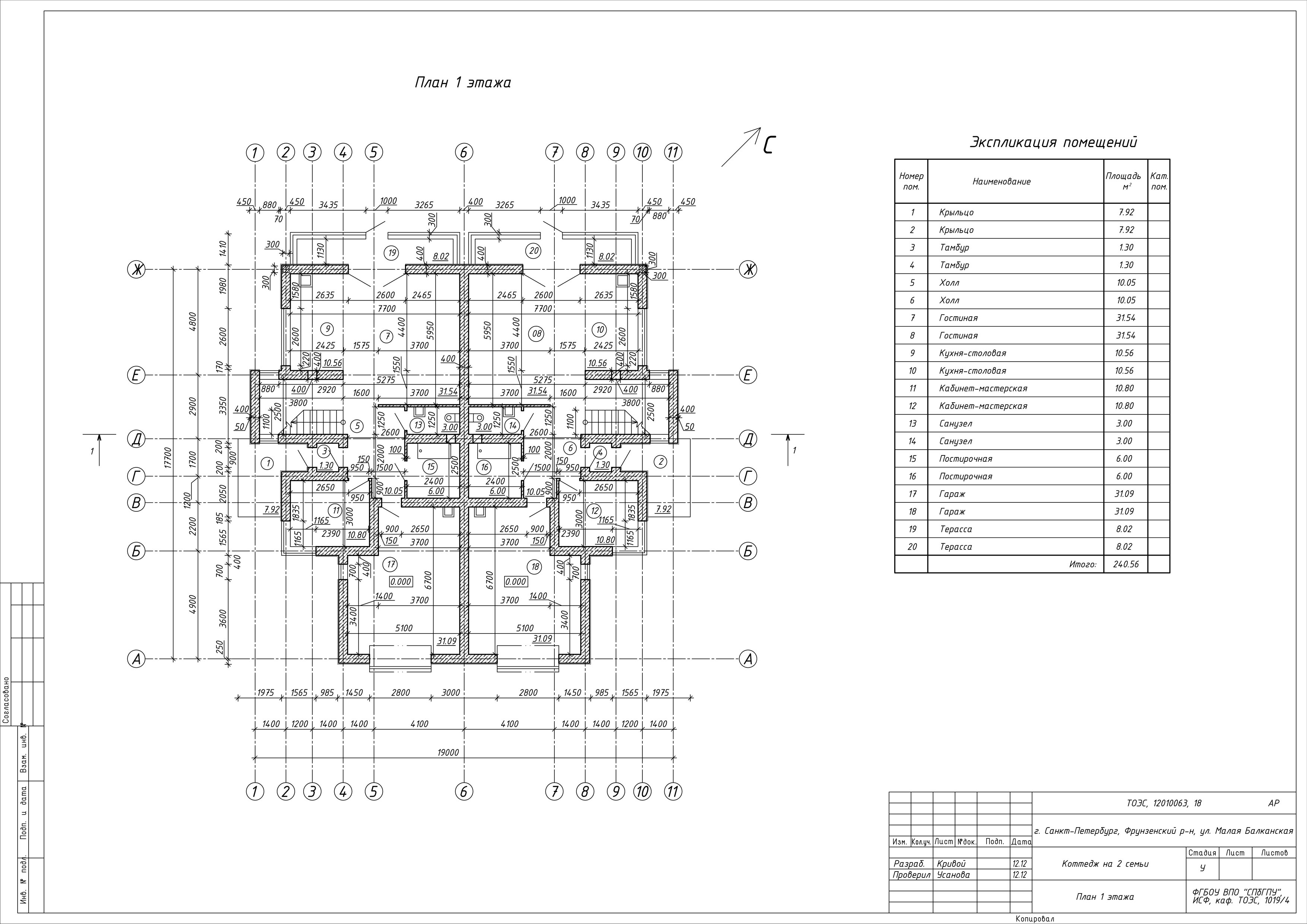
План 1 этажа